Sorbisch-Übersetzung via Sotra: Erstübersetzung dauert 1–2 Min. (Limit bei Überlänge)

Online-Formulare & Anträge

für öffentliche Verkehrsflächen in der Straßenbaulast der Stadt Cottbus

öffentlicher Straßen zum Zwecke der öffentlichen Versorgung oder Entsorgung und der Telekommunikation

 von öffentlichen Straßen zum Zwecke der Herstellung und des Umbaus von Grundstückszufahrten und -zugängen

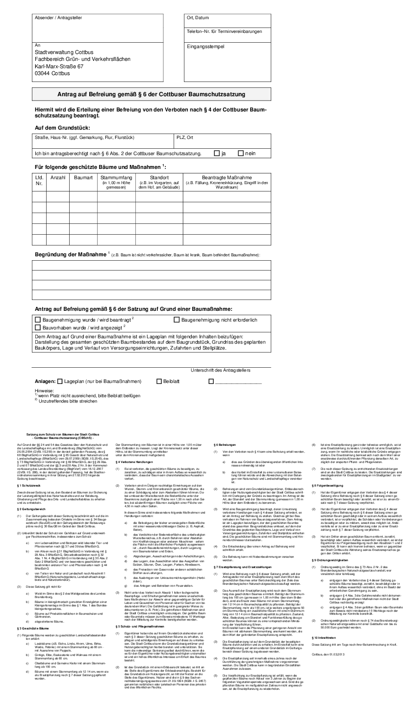
Antrag auf Befreiung gemäß § 6 der Cottbuser Baumschutzsatzung

Achtung: Wir bitten um Verständnis, dass es aufgrund eines hohen Antragsaufkommen zu Verzögerungen in der Bearbeitungszeit kommt. Die Bearbeitungszeit für Anträge auf Befreiung der Cottbuser Baumschutzsatzung erfordert, unter der Voraussetzung, dass die Antragsunterlagen korrekt und vollständig sind, mindestens 4-6 Wochen.
Wir bitten von zwischenzeitlichen Rückfragen zum Bearbeitungsstand abzusehen, da diese zu weiteren Verzögerungen führen.
Vielen Dank für Ihr Verständnis!

Aufgaben des Fachbereiches

  • Planung, Bau, Unterhaltung sowie Verwaltung
    • öffentlicher Straßen, Wege, Plätze,
    • von Brücken und konstruktiven Ingenieurbauten,
    • von Lichtsignalanlagen und Verkehrsleiteinrichtungen,
    • von öffentlichen Grün- und Parkanlagen,
    • von Spiel- und Bolzplätzen,
    • von Brunnen,
    • des Stadtmobiliars sowie
    • von sonstigen Verkehrsflächen (Parkplätze) und Straßenzubehör (z.B. Verkehrszeichen, Fahrradständer)
  • Ermittlung und Erhebung von Erschließungsbeiträgen
  • Erarbeitung des Landschaftsplanes
  • Verwaltung der Friedhöfe, Kriegsgräberfürsorge

Allgemeine Informationen

Fachbereichsleiterin Grün- und Verkehrsflächen

Kathrin

Hauzenberger

Fachbereich 66 - Grün- & Verkehrsflächen

Stadtverwaltung Cottbus Technisches Rathaus Fachbereich Grün- und Verkehrsflächen

Karl-Marx-Str. 67

03044

Cottbus

Tel: Sekretariat

Tiefbau

0355 612-4615

Satzungen

Friedhofsgebührensatzung

In Kraft seit: 01.01.2026

Satzung über Sondernutzungen an öffentlichen Straßen in der Stadt Cottbus/Chóśebuz (Sondernutzungssatzung)

In Kraft seit: 26.03.2023

Satzung über die Erhebung von Gebühren für die Sondernutzungen an öffentlichen Straßen in der Stadt Cottbus/Chóśebuz (Sondernutzungsgebührensatzung)

In Kraft seit: 26.03.2023

Kinderspielplatzsatzung der Stadt Cottbus/Chóśebuz (Spielplatzsatzung)

In Kraft seit: 21.11.2021

Ablösesatzung für private Kinderspielplätze in der Stadt Cottbus/Chóśebuz (Spielplatzablösesatzung)

In Kraft seit: 21.11.2021

Friedhofssatzung für die Friedhöfe der Stadt Cottbus/Chóśebuz

In Kraft seit: 08.08.2021

Satzung zum Schutz von Bäumen der Stadt Cottbus – Cottbuser Baumschutzsatzung (CBSchS)

In Kraft seit: 24.03.2013

Satzung der Stadt Cottbus über die Erhebung von Beiträgen für straßenbauliche Maßnahmen (Straßenbaubeitragssatzung)

In Kraft seit: 02.09.2007

Einzelsatzung der Stadt Cottbus über die Erhebung von Beiträgen für straßenbauliche Maßnahmen an der Neuen Friedhofsstraße in dem Abschnitt von der Hauptstraße bis zur Nordostspitze des Flurstücks 1379

In Kraft seit: 01.01.2007

Einzelsatzung der Stadt Cottbus über die Erhebung von Beiträgen für straßenbauliche Maßnahmen an der Waisenstraße in dem Bereich vom Abschnitt Wilhelm-Külz-Straße bis zur Karl-Liebknecht-Straße

In Kraft seit: 23.04.2006

Einzelsatzung der Stadt Cottbus über die Erhebungvon Beiträgen für straßenbauliche Maßnahmen an der Waisenstraße in dem Bereich vom Abschnitt Karl-Liebknecht-Straße bis zur August-Bebel-Straße

In Kraft seit: 23.04.2006

Satzung der Stadt Cottbus über die Erhebung von Erschließungsbeiträgen (Erschließungsbeitragssatzung – EBS)

In Kraft seit: 27.03.2005

Satzung der Stadt Cottbus über Kostenersatz für Grundstückszufahrten (Satzung über Kostenersatz)

In Kraft seit: 19.12.2004

Einzelsatzung der Stadt Cottbusüber die Erhebung von Beiträgen für die Straßenbaumaßnahme Dissenchener Straße/Dissenchener Hauptstraße zwischen der ehemaligen Bahnstrecke Cottbus-Guben und der Einmündung der Dissenchener Turnstraße

In Kraft seit: 01.02.2004

Einzelsatzung der Stadt Cottbus über die Erhebung von Beiträgen für straßenbauliche Maßnahmen an der Grenzstraße/Sielower Grenzstraße in dem Bereich von der Sielower Chaussee bis zum Abzweig Cottbuser Straße/Sielower Weg

In Kraft seit: 01.11.2003

Einzelsatzung der Stadt Cottbus über die Erhebung von Beiträgen für straßenbauliche Maßnahmen an der Saarstraße in dem Abschnitt von der Ernst-Barlach-Straße bis zur Clara Zetkin-Straße

In Kraft seit: 01.04.2003

Einzelsatzung der Stadt Cottbus über die Erhebung von Beiträgen für straßenbauliche Maßnahmen an der Kopfstraße

In Kraft seit: 01.04.2003

Einzelsatzung der Stadt Cottbus über die Erhebung von Beiträgen für straßenbauliche Maßnahmen an der Ernst-Barlach-Straße

In Kraft seit: 01.04.2003

Einzelsatzung der Stadt Cottbus über die Erhebung von Beiträgen für straßenbauliche Maßnahmen an der Saarstraße in dem Abschnitt von der Clara-Zetkin-Straße bis zur Kolkwitzer Straße

In Kraft seit: 01.04.2003

Einzelsatzung der Stadt Cottbus über die Erhebung von Beiträgen für straßenbauliche Maßnahmen an der Hans-Sachs-Straße

In Kraft seit: 01.04.2003

Einzelsatzung der Stadt Cottbus über die Erhebung von Beiträgen für straßenbauliche Maßnahmen an dem Geh- und Radweg Ernst-Barlach-Straße

In Kraft seit: 01.04.2003

Einzelsatzung der Stadt Cottbus über die Erhebung von Beiträgen für straßenbauliche Maßnahmen an der Wilhelm-Nevoigt-Straße

In Kraft seit: 01.04.2003

Einzelsatzung der Stadt Cottbus über die Erhebung von Beiträgen für straßenbauliche Maßnahmen an der Heinrich-Heine-Straße

In Kraft seit: 01.04.2003

Einzelsatzung der Stadt Cottbus über die Erhebung von Beiträgen für straßenbauliche Maßnahmen an der Clara-Zetkin-Straße

In Kraft seit: 01.04.2003

Einzelsatzung der Stadt Cottbus über die Erhebung von Beiträgen für straßenbauliche Maßnahmen am Ameisenweg

In Kraft seit: 01.01.2003

Einzelsatzung der Stadt Cottbus über die Erhebung von Beiträgen für straßenbauliche Maßnahmen am Finkenweg im Stadtteil Kiekebusch

In Kraft seit: 01.01.2003

Einzelsatzung der Stadt Cottbus über die Erhebung von Beiträgen für straßenbauliche Maßnahmen an der Dorfstraße in Groß Gaglow im Bereich von der Chausseestraße bis zum Pappelweg

In Kraft seit: 01.01.2003

Einzelsatzung der Stadt Cottbus über die Erhebung von Beiträgen für straßenbauliche Maßnahmen an der Gallinchener Hauptstraße (B 97)in dem Abschnitt nördlich der alten Ortsdurchfahrtsgrenze Cottbus/Gallinchen vor der Autobahnbrücke der BAB 15 und dem Knotenpunkt Gewerbegebiet/Schorbuser Weg

In Kraft seit: 01.09.2002

Einzelsatzung über die Erhebung von Beiträgen für die Straßenausbaumaßnahme Kolkwitzer Str. / Karl – Liebknecht – Str. zwischen der Einfahrt Elf Tankstelle und der Kreuzung Friedrich – Hebbel – Straße

In Kraft seit: 01.04.2002

Einzelsatzung über die Erhebung von Beiträgen für die Straßenausbaumaßnahme Kolkwitzer Str. / Karl-Liebknecht-Str. zwischen der Einfahrt ELF Tankstelle und der Kreuzung Friedrich-Hebbel-Straße

In Kraft seit: 01.04.2002

Einzelsatzung der Stadt Cottbusüber die Erhebung von Beiträgen für straßenbauliche Maßnahmen an der Madlower Hauptstraße in dem Bereich von der Kreuzung Gaglower Landstraße/Kiekebuscher Weg bis zur Autobahnauffahrt Cottbus-Süd

In Kraft seit: 01.01.2002

Einzelsatzung der Stadt Cottbus über die Erhebung von Beiträgen für straßenbauliche Maßnahmen an der Feldstraße in dem Bereich von der Kreuzung Schmellwitzer Schulstraße bis zur Kreuzung Neue Straße

In Kraft seit: 01.01.2001

Einzelsatzung der Stadt Cottbus über die Erhebung von Beiträgen für die Herstellung, Anschaffung, Erweiterung, Erneuerung und Verbesserung der Dresdener Straße im Bereich vom Abzweig Ottilienstraße bis zum Abzweig Hermann-Löns-Straße

In Kraft seit: 01.01.2000

Einzelsatzung der Stadt Cottbus über die Erhebung von Beiträgen für straßenbauliche Maßnahmen an der Gulbener Str./ Lieberoser Str. in dem Bereich zwischen dem Abzweig der Werbener Str. von der Gulbener Str. und der Kreuzung Erich-Weinert-Str. / Lieberoser Str.

In Kraft seit: 01.01.2000

Einzelsatzung der Stadt Cottbus über die Erhebung von Beiträgen für straßenbauliche Maßnahmen an der Kolkwitzer Straße/Berliner Straße in dem Bereich zwischen dem Abzweig der Kolkwitzer Straße von der Karl-Liebknecht-Straße und der Kreuzung Berliner Straße/Schillerstraße/Lessingstraße

In Kraft seit: 01.01.2000

Einzelsatzung der Stadt Cottbus über die Erhebung von Beiträgen für straßenbauliche Maßnahmen an der Gulbener Straße/Lieberoser Straße in dem Bereich zwischen dem Abzweig der Werbener Straße von der Gulbener Straße und der Kreuzung Erich-Weinert-Straße/Lieberoser Straße

In Kraft seit: 01.01.2000

Einzelsatzung über die Erhebung von Beiträgen für die Straßenausbaumaßnahme Am Lug zwischen Feldstraße und Zuschka

In Kraft seit: 01.01.1999

Einzelsatzung der Stadt Cottbus über die Erhebung von Beiträgen für die Straßenausbaumaßnahme Parzellenstraße (Abschnitt I: Parzellenstraße zwischen Stromstraße und Spreedamm)

In Kraft seit: 01.01.1999

Einzelsatzung der Stadt Cottbus über die Erhebung von Beiträgen für die Straßenausbaumaßnahme Siedlung Nord zwischen Nordparkstraße und Drachhausener Straße

In Kraft seit: 01.01.1998

Einzelsatzung der Stadt Cottbus über die Erhebung von Beiträgen für straßenbauliche Maßnahmen in der Gaglower Straße im Bereich vom Abzweig Mittelstraße bis zum Abzweig Harnischdorfer Straße im Stadtteil Gallinchen

In Kraft seit: 01.09.1996

Einzelsatzung der Stadt Cottbus über die Erhebung von Beiträgen für straßenbauliche Maßnahmen in der Gaglower Straße im Bereich vom Abzweig Mittelstraße bis zum Abzweig Harnischdorfer Straße im Stadtteil Gallinchen

In Kraft seit: 01.09.1996

Einzelsatzung der Stadt Cottbus über die Erhebung von Beiträgen für die Straßenausbaumaßnahme Nordparkstraße zwischen Quer- und Albrecht-Dürer-Straße

In Kraft seit: 01.01.1996

Einzelsatzung der Stadt Cottbus über die Erhebung von Beiträgen für die Straßenausbaumaßnahme Nordparkstraße zwischen Quer- und Albrecht Dürer Straße

In Kraft seit: 01.01.1996

Einzelsatzung der Stadt Cottbus über die Erhebung von Beiträgen für die Straßenausbaumaßnahme Ackerstraße/Stromstraße westlicher Teil zwischen Parzellenstraße und Bautzener Straße

In Kraft seit: 01.01.1995

Einzelsatzung der Stadt Cottbus über die Erhebung von Beiträgen für die Straßenausbaumaßnahme Ackerstraße / Stromstraße westlicher Teil zwischen Parzellenstraße und Bautzener Straße

In Kraft seit: 01.01.1995

Einzelsatzung über die Erhebung von Beiträgen für die Straßenausbaumaßnahme Mittelstraße südlicher Teil bis Kreuzungsbereich Ströbitzer Schulstraße

In Kraft seit: 10.08.1992

Einzelsatzung über die Erhebung von Beiträgen für die Straßenausbaumaßnahme Mittelstraße südlicher Teil bis Kreuzungsbereich Ströbitzer Schulstraße

In Kraft seit: 10.08.1992

Satzungen Außerkraft

Satzung über die Erhebung von Gebühren für die Friedhöfe der Stadt Cottbus (Friedhofsgebührensatzung)

Einzelsatzung der Stadt Cottbus über die Erhebung von Beiträgen für straßenbauliche Maßnahmen an der Neuen Friedhofsstraße in dem Abschnitt von der Hauptstraße bis zur Nordostspitze des Flurstücks 1379

Einzelsatzung der Stadt Cottbus über die Erhebung von Beiträgen für straßenbauliche Maßnahmen an der Waisenstraße in dem Bereich vom Abschnitt Wilhelm-Külz-Straße bis zur Karl-Liebknecht-Straße

Einzelsatzung der Stadt Cottbusüber die Erhebung von Beiträgen für die Straßenbaumaßnahme Dissenchener Straße/Dissenchener Hauptstraße zwischen der ehemaligen Bahnstrecke Cottbus-Guben und der Einmündung der Dissenchener Turnstraße

Einzelsatzung der Stadt Cottbus über die Erhebung von Beiträgen für straßenbauliche Maßnahmen an der Grenzstraße/Sielower Grenzstraße in dem Bereich von der Sielower Chaussee bis zum Abzweig Cottbuser Straße/Sielower Weg

Einzelsatzung der Stadt Cottbus über die Erhebung von Beiträgen für straßenbauliche Maßnahmen an der Saarstraße in dem Abschnitt von der Ernst-Barlach-Straße bis zur Clara Zetkin-Straße

Einzelsatzung der Stadt Cottbus über die Erhebung von Beiträgen für straßenbauliche Maßnahmen an der Kopfstraße

Einzelsatzung der Stadt Cottbus über die Erhebung von Beiträgen für straßenbauliche Maßnahmen an der Ernst-Barlach-Straße

Einzelsatzung der Stadt Cottbus über die Erhebung von Beiträgen für straßenbauliche Maßnahmen an der Saarstraße in dem Abschnitt von der Clara-Zetkin-Straße bis zur Kolkwitzer Straße

Einzelsatzung der Stadt Cottbus über die Erhebung von Beiträgen für straßenbauliche Maßnahmen an der Hans-Sachs-Straße

Einzelsatzung der Stadt Cottbus über die Erhebung von Beiträgen für straßenbauliche Maßnahmen an dem Geh- und Radweg Ernst-Barlach-Straße

Einzelsatzung der Stadt Cottbus über die Erhebung von Beiträgen für straßenbauliche Maßnahmen an der Wilhelm-Nevoigt-Straße

Einzelsatzung der Stadt Cottbus über die Erhebung von Beiträgen für straßenbauliche Maßnahmen an der Heinrich-Heine-Straße

Einzelsatzung der Stadt Cottbus über die Erhebung von Beiträgen für straßenbauliche Maßnahmen an der Clara-Zetkin-Straße

Einzelsatzung der Stadt Cottbus über die Erhebung von Beiträgen für straßenbauliche Maßnahmen am Ameisenweg

Einzelsatzung der Stadt Cottbus über die Erhebung von Beiträgen für straßenbauliche Maßnahmen am Finkenweg im Stadtteil Kiekebusch

Einzelsatzung der Stadt Cottbus über die Erhebung von Beiträgen für straßenbauliche Maßnahmen an der Dorfstraße in Groß Gaglow im Bereich von der Chausseestraße bis zum Pappelweg

Einzelsatzung der Stadt Cottbus über die Erhebung von Beiträgen für straßenbauliche Maßnahmen an der Gallinchener Hauptstraße (B 97)in dem Abschnitt nördlich der alten Ortsdurchfahrtsgrenze Cottbus/Gallinchen vor der Autobahnbrücke der BAB 15 und dem Knotenpunkt Gewerbegebiet/Schorbuser Weg

Einzelsatzung über die Erhebung von Beiträgen für die Straßenausbaumaßnahme Kolkwitzer Str. / Karl-Liebknecht-Str. zwischen der Einfahrt ELF Tankstelle und der Kreuzung Friedrich-Hebbel-Straße

Einzelsatzung der Stadt Cottbusüber die Erhebung von Beiträgen für straßenbauliche Maßnahmen an der Madlower Hauptstraße in dem Bereich von der Kreuzung Gaglower Landstraße/Kiekebuscher Weg bis zur Autobahnauffahrt Cottbus-Süd

Einzelsatzung der Stadt Cottbus über die Erhebung von Beiträgen für straßenbauliche Maßnahmen an der Feldstraße in dem Bereich von der Kreuzung Schmellwitzer Schulstraße bis zur Kreuzung Neue Straße

Einzelsatzung der Stadt Cottbus über die Erhebung von Beiträgen für die Herstellung, Anschaffung, Erweiterung, Erneuerung und Verbesserung der Dresdener Straße im Bereich vom Abzweig Ottilienstraße bis zum Abzweig Hermann-Löns-Straße

Einzelsatzung der Stadt Cottbus über die Erhebung von Beiträgen für straßenbauliche Maßnahmen an der Gulbener Str./ Lieberoser Str. in dem Bereich zwischen dem Abzweig der Werbener Str. von der Gulbener Str. und der Kreuzung Erich-Weinert-Str. / Lieberoser Str.

Einzelsatzung der Stadt Cottbus über die Erhebung von Beiträgen für straßenbauliche Maßnahmen an der Kolkwitzer Straße/Berliner Straße in dem Bereich zwischen dem Abzweig der Kolkwitzer Straße von der Karl-Liebknecht-Straße und der Kreuzung Berliner Straße/Schillerstraße/Lessingstraße

Einzelsatzung der Stadt Cottbus über die Erhebung von Beiträgen für straßenbauliche Maßnahmen an der Gulbener Straße/Lieberoser Straße in dem Bereich zwischen dem Abzweig der Werbener Straße von der Gulbener Straße und der Kreuzung Erich-Weinert-Straße/Lieberoser Straße

Einzelsatzung der Stadt Cottbus über die Erhebung von Beiträgen für die Straßenausbaumaßnahme Parzellenstraße (Abschnitt I: Parzellenstraße zwischen Stromstraße und Spreedamm)

Einzelsatzung der Stadt Cottbus über die Erhebung von Beiträgen für die Straßenausbaumaßnahme Parzellenstraße (Abschnitt I: Parzellenstraße zwischen Stromstraße und Spreedamm)

Einzelsatzung der Stadt Cottbus über die Erhebung von Beiträgen für die Straßenausbaumaßnahme Siedlung Nord zwischen Nordparkstraße und Drachhausener Straße

Einzelsatzung der Stadt Cottbus über die Erhebung von Beiträgen für die Straßenausbaumaßnahme Parzellenstraße (Abschnitt II: Parzellenstraße zwischen Stromstraße und Bahnstrecke Cottbus-Forst)

Einzelsatzung der Stadt Cottbus über die Erhebung von Beiträgen für straßenbauliche Maßnahmen in der Gaglower Straße im Bereich vom Abzweig Mittelstraße bis zum Abzweig Harnischdorfer Straße im Stadtteil Gallinchen

Einzelsatzung der Stadt Cottbus über die Erhebung von Beiträgen für straßenbauliche Maßnahmen in der Gaglower Straße im Bereich vom Abzweig Mittelstraße bis zum Abzweig Harnischdorfer Straße im Stadtteil Gallinchen

Einzelsatzung der Stadt Cottbus über die Erhebung von Beiträgen für die Straßenausbaumaßnahme Nordparkstraße zwischen Quer- und Albrecht Dürer Straße

Einzelsatzung der Stadt Cottbus über die Erhebung von Beiträgen für die Straßenausbaumaßnahme Ackerstraße/Stromstraße westlicher Teil zwischen Parzellenstraße und Bautzener Straße

Einzelsatzung der Stadt Cottbus über die Erhebung von Beiträgen für die Straßenausbaumaßnahme Karlstraße (Abschnitt vom Bonnaskenplatz bis Beuchstraße)

Einzelsatzung der Stadt Cottbus über die Erhebung von Beiträgen für die Straßenausbaumaßnahme Ackerstraße / Stromstraße westlicher Teil zwischen Parzellenstraße und Bautzener Straße

Einzelsatzung über die Erhebung von Beiträgen für die Straßenausbaumaßnahme Mittelstraße südlicher Teil bis Kreuzungsbereich Ströbitzer Schulstraße

Die vorliegenden Informationen zur Verarbeitung personenbezogener Daten geben Auskunft über die Pflichtangaben zu den Verarbeitungstätigkeiten der Verantwortlichen.